This finished piece and millwork drawings highlight Mia’s role as lead designer in a professionally commissioned in-home bar. From initial concept through construction management, she guided the project with a strong focus on detail and client vision. The design combines refined materials, such as pony hide veneer and wenge wood to create a bold, sculptural statement that balances functionality with distinctive character. The result is a custom piece that elevates the home environment while reflecting the client’s unique style.






Mia served as the architectural designer for this residential project, responsible for conceptualizing and refining key design elements that balance both aesthetics and functionality. From initial sketches and inspiration presentations to detailed architectural drawings, Mia collaborated closely with clients and project teams to ensure the design aligns with the unique needs and vision of the homeowners. This project has provided an opportunity to explore creative solutions to spatial challenges, integrate sustainable design practices, and incorporate modern architectural styles while maintaining harmony with the surrounding environment.
This project demonstrated Mia’s ability to develop a full construction document set for a change of tenancy, including existing condition surveys, updated floor plans, and detailed drawings for demolition, partitions, finishes, and MEP modifications. She coordinated code compliance requirements and collaborated with consultants to ensure accuracy, clarity, and alignment with jurisdictional approval processes.
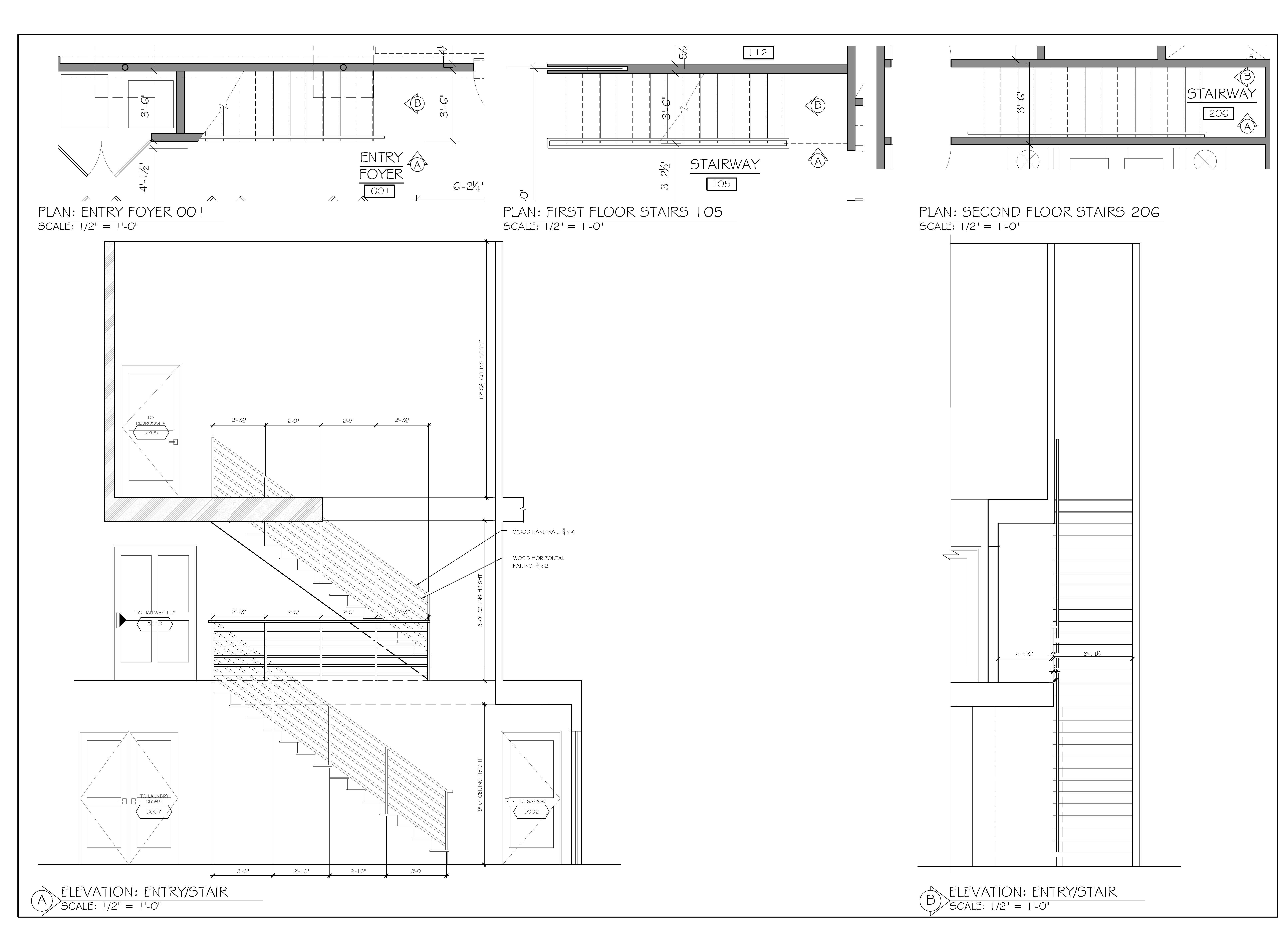
This is various work completed during Mia’s internships at architectural firms throughout her college career. The drawings include building sections and elevations, demonstrating Mia’s ability to translate conceptual designs into technical documentation. These projects allowed Mia’s to develop a deeper understanding of architectural detailing, construction processes, and the integration of design with real-world constraints. Each drawing reflects Mia’s growing proficiency in architectural software and Mia’s commitment to clarity and precision in presenting design ideas.

















































